Mehrzweckhalle sanieren mit möglichst hoher Förderung

Veröffentlicht am 16.05.2022 - Redakteur: Eva Seifried

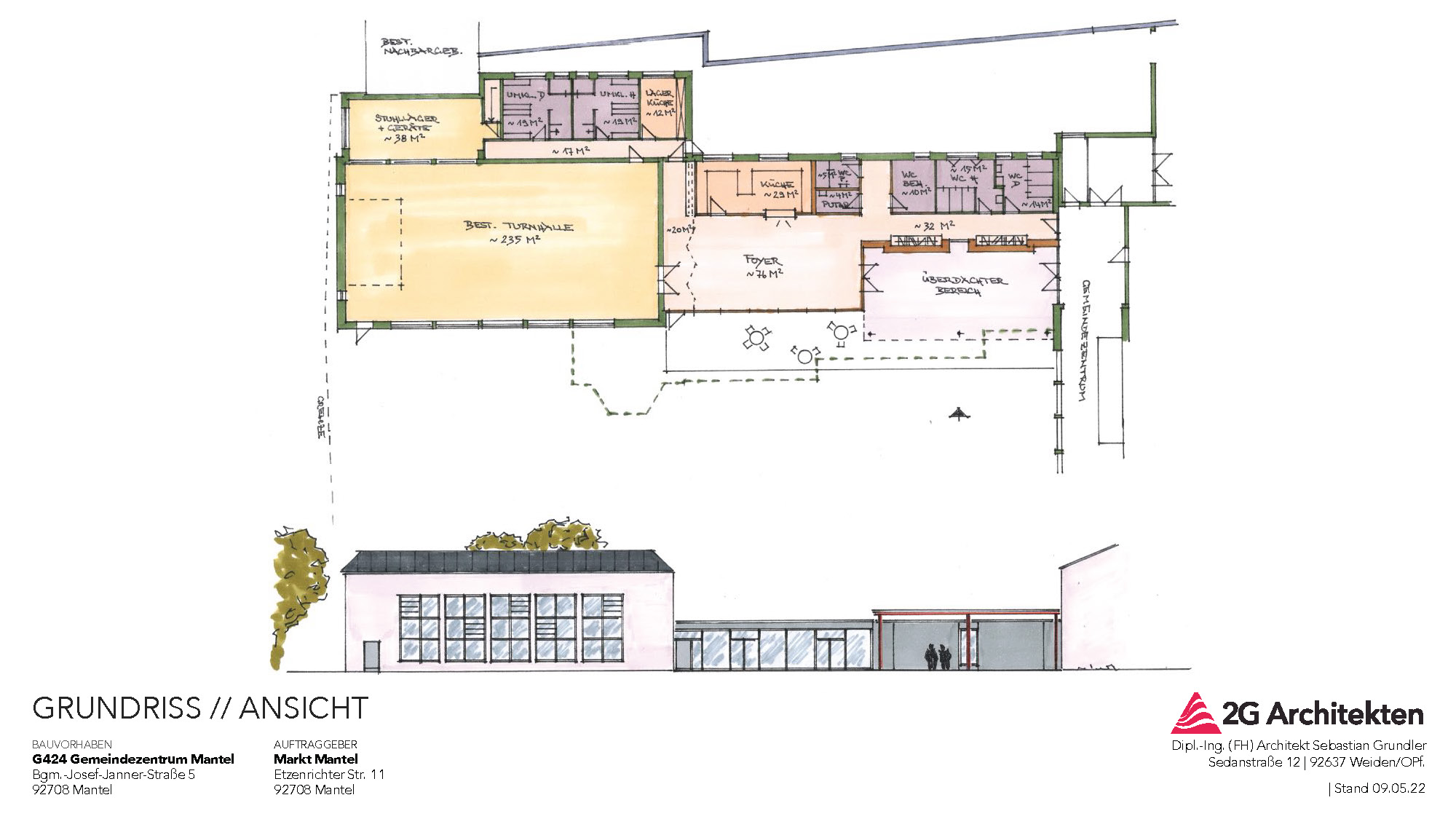
In der letzten Sitzung des Marktgemeinderates stellten Architekt Sebastian Grundler und Marion Braun von den 2G-Architekten das Sanierungskonzept für die Mehrzweckhalle vor. Eine Machbarkeitsstudie hatte vier Möglichkeiten aufgezeigt von Sanierung bis Neubau. Es gab dann einige Besprechungen mit der Regierung der Oberpfalz hinsichtlich möglicher Fördermittel wie Sportstättenförderprogramm und Städtebauförderung. Das Architekturbüro erarbeitete weitere Varianten und es gab nochmal Rücksprache mit der Regierung. Die letzte nun vorgestellte Möglichkeit hat das Ziel, alle Kriterien, die für die Förderungen erforderlich sind, zu erfüllen. Wie die Fachleute erklärten ,muss das Bestandsgebäude erhalten werden, soweit dies möglich ist, also die Mehrzweckhalle und ein großer Teil der Nebenräume. Das weitere Raumprogramm ist auf ein Minimum zu reduzieren und es müssen flexible Nutzflächen geschaffen werden. „Durch den Umbau und die Sanierung ist ein gestalterischer Mehrwert zu erzielen“, so de Architekten. Geplant ist nun, dass Halle und Nebenräume bestehen bleiben mit Geräteraum und Umkleiden und diese werden saniert und geringfügig umgebaut. Die bestehende Fläche zwischen Halle und dem bereits sanierten Gemeindezentrum wird rückgebaut, umgebaut und saniert. Sowohl das Gemeindezentrum als auch der neue Mehrzweckhallenbereich wird über eine überdachte Eingangszone erschlossen. Der Mehrzweckhalle ist ein großzügiges Foyer mit Küche vorgeschaltet. Dieser Foyerbereich ist im Bedarfsfall als kleiner Veranstaltungsraum nutzbar, zeitgleich mit einer Belegung der Mehrzweckhalle. Die Küche ist lediglich für Anlieferungen (Catering) bzw. zur Nutzung von Vereinen ausgelegt und nicht für eine gewerbliche Bewirtschaftung. Eine Förderung würde bei einer Bewirtschaftung der Küche entfallen. Die bereits bestehenden Toiletten im rückwärtigen Bereich des Zwischenbaus bleiben erhalten und sind für beide Gebäudeteile nutzbar (Doppelnutzung). Weitere kleine Nebenräume schließen sich dieser Spange an, der vorgelagerte Erschließungsflur verbindet den Mehrzweckhallenbereich mit dem Gemeinschaftszentrum. Vor dem Foyer soll sich ein kleiner Terrassenbereich befinden, der bei Veranstaltungen mit eingezogen werden kann. Möglich sein sollen flexible Nutzungen des bereits sanierten Gemeindezentrums in Kombination mit dem neu geplanten Mehrzweckhallenbereich. Bei Bedarf ist der Foyerbereich als kleiner Veranstaltungrsraum nutzbar zum Beispiel für Sitzungen oder Vereinsversammlungen, auch zeitgleich mit einer Belegung der Sporthalle und auch Veranstaltungen im Gemeindezentrum. Das Foyer steht auch dem Gemeindezentrum zur Verfügung zum Beispiel bei Trauungen, es kann aber auch bei größeren Veranstaltungen der Mehrzweckhalle zugeschaltet werden. Der Markt Mantel hofft, wenn alles gut läuft, dass die Sanierung der Halle als Sportstätte zu 90 Prozent gefördert wird und der andere Teil zu 60 Prozent über die Städtebauförderung. Teilweise wurde bedauert, dass kein Gaststättenbetrieb möglich sein darf, denn das würde es keine staatliche Förderung geben. Auf Nachfrage erklärte Bürgermeister Richard Kammerer, dass die Schulturnhalle total ausgebucht ist und sehr wohl noch Bedarf für sportliche Nutzung besteht. Die Halle steht ja auch den Vereinen für Veranstaltungen zur Verfügung ebenso für den Markt Mantel. „Wir werden und dürfen ganz bestimmt keine „Hochzeitshalle“ bauen“, so Kammerer. Wichtig ist für die Marktgemeinderäte, dass die Unterhaltskosten so gering wie möglich sind. Durch die Diskussion stellte sich heraus, dass doch noch viele Fragen offen sind, außerdem wurde ein Bürgerantrag angekündigt und so erging gegen die drei Stimmen der Freien Wähler der Beschluss, dass der Vorentwurf bei der Bürgerversammlung Ende Juni der Bevölkerung nochmal genauso vorgestellt wird, wie dem Marktgemeinderat und dann die Entscheidung in einer späteren Sitzung des Gremiums fällt.

Bildergalerie

< zurück zur Übersicht

Anzeige

Veranstaltungen / Mantel

Veranstaltungen / Oberpfalz

Das Wetter in Mantel

Das Marktblatt bei Facebook